Wie groß ist eine Concept Beton Garage?

Unsere Elementbaugarage bietet sehr viele Möglichkeiten. Sie bestimmen Maße und Ausführung Ihres Bauvorhabens. Keine vorgegebenen Größenschritte oder Raster schränken Ihre Planungen ein. Zentimetergenau können wir die für Sie passende Garage bauen. Planen Sie frei in alle Richtungen.

Gestalten und kombinieren Sie wie Sie wollen.

Alles ist möglich!

Welche Breiten, Längen und Höhen sind bei Concept Beton Garagen möglich?

Breite: 280 bis 900 cm
Länge: 600 bis 1000 cm
Höhe: 250 bis 600 cm

Garagentor

Torbreite: 250 bis 550 cm
Torhöhe: 200 bis 350 cm
Conceptor
Der 3D Garagen-Konfigurator!

Gestalten Sie Ihre Wunsch-Garage in wenigen Schritten mit dem Online Konfigurator Conceptor und betrachten das Ergebnis in 3D-Rundumsicht.
Planung nach Maß mit viel Ausstattung.

Konfigurator starten

Welche Garagentypen gibt es bei Concept Beton?

Welche besonderen Garagenvarianten sind möglich?

Beton­fertiggaragen-Objekte mit technischen Zeichnungen

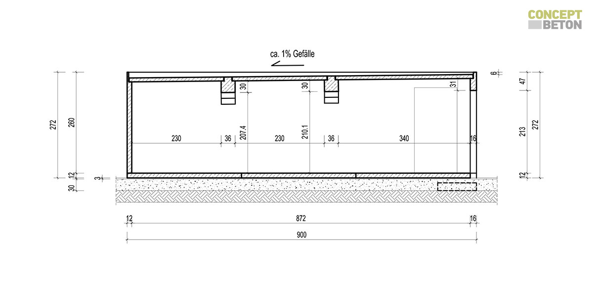
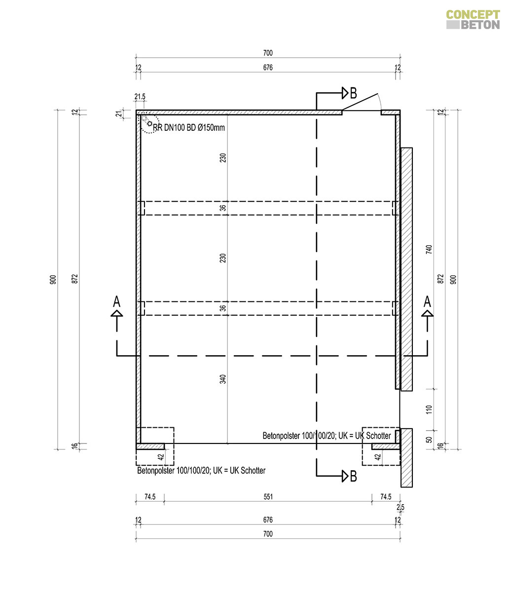
Concept Beton möchte Ihnen in dieser Rubrik einen „Blick hinter die Kulissen" der Betonfertiggaragen bieten und präsentiert Ihnen technische Zeichnungen und Details einiger Fertiggaragen als Beispiel. Lassen Sie sich inspirieren und sammeln Sie Ideen und geeignete technische Informationen für Ihre eigene Betonfertiggarage.

Geeignete Betonfertig­garagen konfigurieren

Besonders hervorzuheben ist bei den Elementbaugaragen von Concept Beton die freitragende Konstruktion mit den sehr offen gehaltenen Innenräumen.

Die Grundmaße einer Betonfertiggarage können nach Rastermaßen angelegt oder Breite, Höhe und Länge individuell auf Grundstück, Auto und Kundenwunsch angepasst werden. In diesem Fall ergibt sich die Höhe einer Garage manchmal ganz einfach durch die gewünschte Durchfahrtshöhe des Tores, wenn Sie beispielsweise einen erhöhten SUV fahren.

Konfigurator starten
Persönliche Beratung unter: 02306.781300

Jetzt anfragen und Angebot erhalten

Jetzt anfragen und Angebot erhalten

(bis zu 3 Anlagen je max. 5 MB. Format: .jpg, .png, .pdf)

Anlagen löschen

Herkunft

Wie sind Sie auf uns aufmerksam geworden?

Telefon

Wünschen Sie eine telefonische Beratung? Gerne, bitte teilen Sie uns mit wann wir Sie zurückrufen dürfen:

Alle Eingaben löschen